Service

Working Drawings

Working with known engineers & sources to maximize specific needs for each project.

 

Service Overview

Build-ready and presentation-ready – Lauren Anderson’s working architectural drawings are the backbone of any successful project. With decades of architectural drafting experience and working with a select team.   Lauren produces clean, detailed construction documents that streamline permitting, pricing, and build-out processes.   Early scale concept drawings to get early bids, keeps the project budget in control.

Why Working Drawings Matter

Working drawings are more than technical documents – they are the blueprint for transforming ideas into built reality. Accurate, detailed drawings ensure contractors, engineers, and inspectors understand the design intent clearly, reducing delays, misinterpretations, and costly errors during construction.  The most effective way to reduce cost is to make budget decisions early!

Lauren’s Approach

Lauren combines first hand construction knowledge with precision drafting skills to produce drawings that are functional, buildable, and reflective of the design vision. Working with a select team insures every document integrates structural, mechanical, and accessibility requirements seamlessly while preserving the aesthetic and conceptual goals established with the client during design.

Result

Result:   Clients receive construction documents that simplify bidding, accelerate permitting approvals, and ensure the project is built correctly, efficiently, and true to the design.

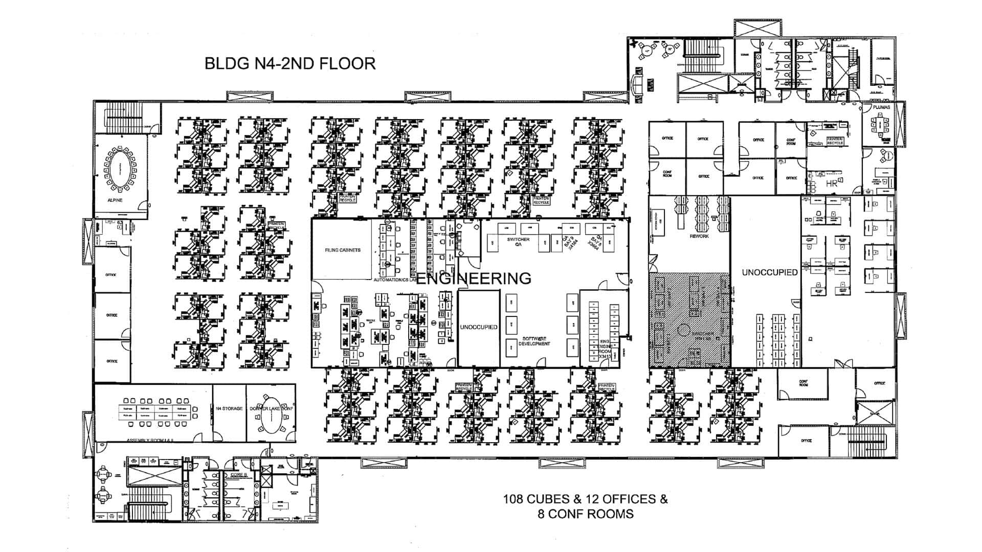
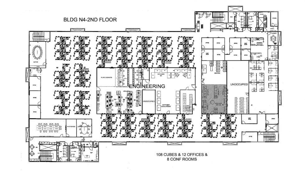
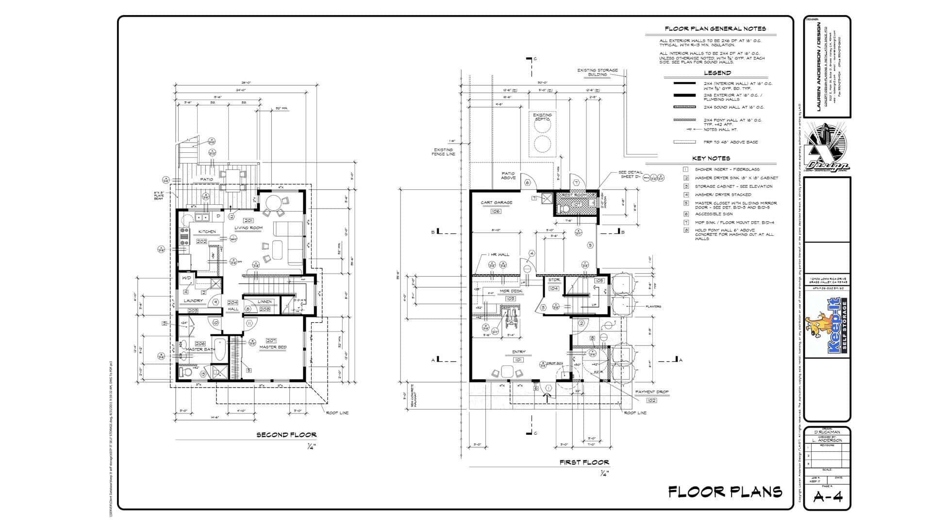
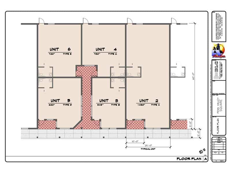
Gallery of Working Drawings

Work With Us

Whether you’re starting with a concept sketch or ready for a full build-out, we’re here to bring your vision to life. Reach out today to discuss your project goals and see how Lauren Anderson Design can support you.

This site is protected by reCAPTCHA and the Google Privacy Policy and Terms of Service apply